- Surface habitable
- 99 m2
- Chambres
- 3
- Salle de bains
- 1
- Taille de la parcelle
- 635 m2
Présentation
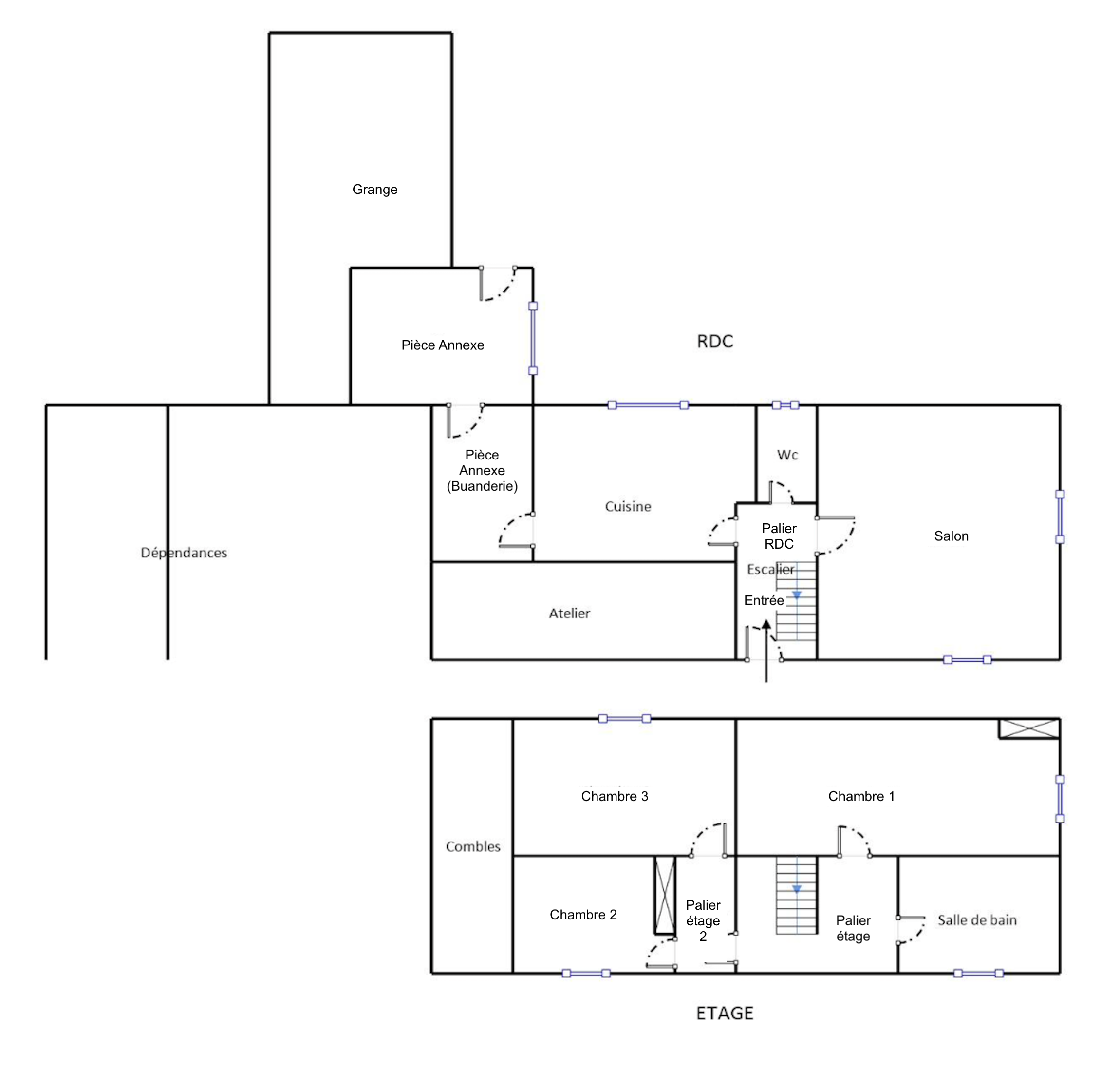
Située à Bonneuil-Matours, cette maison ancienne des années 1850 développe environ 99 m² habitables et offre un fort potentiel de rénovation.
Au rez-de-chaussée, vous découvrirez un salon avec coin insert, puis une cuisine avec plusieurs pièces annexes permettant d’envisager un agrandissement, la création d’une buanderie ou d’un cellier, voire une réorganisation complète selon votre projet. Un WC indépendant complète ce niveau.
À l’étage, le palier dessert une salle de bain ainsi que trois chambres de 11,60 m², 12,40 m² et 19 m².
Atouts supplémentaires : une cave ainsi qu’une immense grenier avec une belle charpente cathédrale offre un fort potentiel d’aménagement supplémentaire.
Une grange en bon état et plusieurs dépendances complètent l’ensemble, offrant un beau potentiel pour stockage, atelier ou activité professionnelle. Terrain de plus de 400 m² avec accès véhicule des deux côtés.
Le bien nécessite une rénovation globale : couverture de l’habitation à refaire, toitures des dépendances à reprendre, électricité et chauffage à revoir intégralement, isolation à prévoir. Menuiseries en simple et double vitrage. DPE F, audit énergétique réalisé.
Une belle bâtisse en pierre pleine de charme, offrant un fort potentiel de rénovation pour donner vie à un projet sur mesure et valoriser tout le cachet de l’ancien.
Les informations sur les risques auxquels ce bien est exposé sont disponibles sur le site du gouvernement « Géorisques ». Les honoraires sont à la charge du vendeur.


















